Verkocht onder voorbehoud:Hoogkarspelstraat 56, 5045 BL Tilburg - Foto
Verkocht onder voorbehoud
+32

Hoogkarspelstraat 56 5045 BL Tilburg € 375.000,- k.k.

  • Woonhuis
  • 5 kamers
  • 4 slaapkamers
  • 1 badkamer
  • Bouwjaar 1990
  • 148 m² perceeloppervlakte
  • 104 m² gebruiksoppervlakte
  • B Energielabel B

Beschrijving

Op een rustige locatie gelegen tussenwoning met vier slaapkamers, overal dubbele beglazing, airco, gelegen op loopafstand van het winkelcentrum Heyhoef liggen ook de kinderopvang, scholen en bibliotheek op loopafstand van de woning.

Bouwjaar: 1991
Inhoud: 359 m³
Perceel: 148m²
Woonoppervlakte: 104 m²
externe bergruimte: 11m²

Indeling:
Begane grond:
Entree/hal met meterkast (7 groepen en aardlekschakelaar) en toegangsdeur tot de woonkamer. De doorzon woonkamer is voorzien van een tegelvloer, stucwerkwanden en stucwerkplafond. In het midden een trappenkast en de toegangsdeur tot de 1e verdieping. Aan de achterzijde zit de hoekkeuken met diverse inbouwapparatuur zoals een vaatwasser, koelkast, diepvriezer, elektrische oven, kookplaat en afzuigkap. Vanuit de keuken toegang tot de achtertuin. Aan de voor -en achterzijde zitten elektrische rolluiken. In de hal naar boven zit het geheel betegelde toilet met fonteintje.

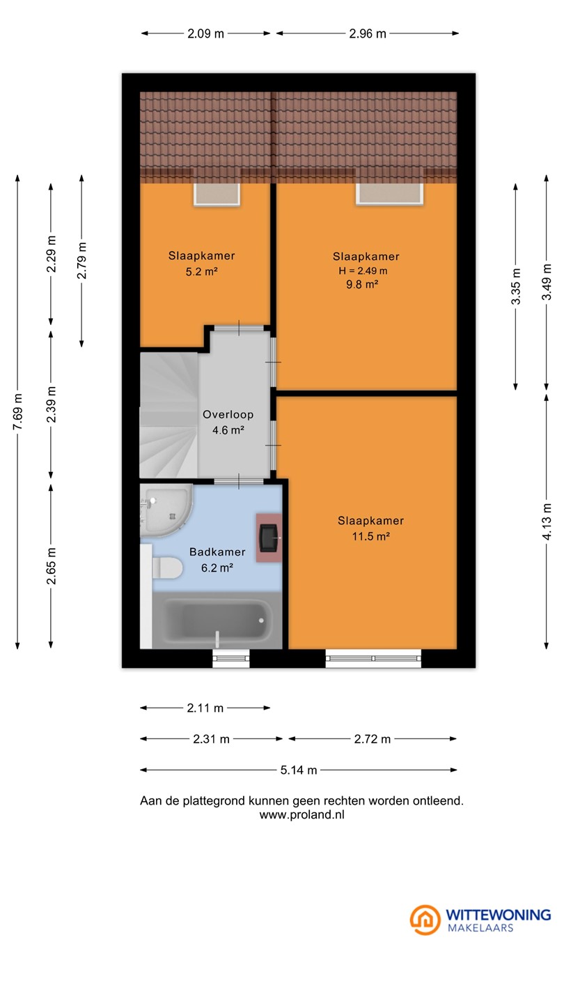
1e verdieping:
Overloop welke toegang biedt tot de trapopgang naar de 2e verdieping, drie slaapkamers en de badkamer. De gehele verdieping is afgewerkt met een doorgelegde laminaatvloer, stucwerkwanden en stucwerkplafond. De slaapkamer aan de voorzijde heeft een elektrisch rolluik en hier hangt een airco. De badkamer, ook aan de voorzijde gesitueerd, is geheel betegeld en deze heeft een ligbad, douchecabine, tweede toilet en een wastafelmeubel.

2e verdieping:
Middels een vaste trap te bereiken afgewerkte open zolder, makkelijk te gebruiken als vierde slaapkamer. De vloeroppervlakte is 5x4, bergschotten aanwezig, aan de achterzijde een dakraam en de aansluiting wasmachine/droger zijn hier aanwezig.

Tuin/berging:
Achtertuin, 12 x 5,38, gelegen op het zuidoosten. Aan de woningzijde zitten een overkapping en de kraanaansluiting. Verder is de tuin een combinatie tussen vaste beplanting en tegels. Aan de achterzijde een berging met elektra met toegang tot de eigen achterom.

Levendige en goed bereikbare woonomgeving
Deze woning is gelegen in de rustige en kindvriendelijke wijk Heerevelden, onderdeel van de populaire Reeshof. De wijk staat bekend om haar groene en ruim opgezette karakter met diverse speelgelegenheden en wandelpaden. Op korte afstand bevinden zich meerdere basisscholen, kinderopvanglocaties en middelbare scholen, wat deze locatie ideaal maakt voor gezinnen.

Voor de dagelijkse boodschappen en andere voorzieningen kun je terecht bij winkelcentrum Heyhoef, dat op enkele minuten afstand ligt. Hier vind je een breed aanbod aan supermarkten, speciaalzaken en horecagelegenheden. Daarnaast biedt de wijk tal van sport- en recreatiemogelijkheden, waaronder het Reeshofpark, sportverenigingen en fitnesscentra.

Dankzij de gunstige ligging nabij belangrijke uitvalswegen zijn steden als Breda, ’s-Hertogenbosch en Eindhoven goed bereikbaar. Het openbaar vervoer is uitstekend geregeld met een treinstation in de wijk en diverse busverbindingen richting het centrum van Tilburg en omliggende gemeenten. Kortom, een fijne woonomgeving waar rust en voorzieningen perfect in balans zijn!

Kaart

Kenmerken

Overdracht

Referentienummer
134
Vraagprijs
€ 375.000,- k.k.
Elektra
€ 110,-
Water
€ 24,-
Status
Verkocht onder voorbehoud
Aanvaarding
In overleg
Aangeboden sinds
Dinsdag 31 maart 2026
Laatste wijziging
Vrijdag 1 mei 2026

Bouw

Type object
Woonhuis, eengezinswoning, tussenwoning
Soort bouw
Bestaande bouw
Bouwperiode
1990
Isolatievormen
Dakisolatie
Dubbel glas
Volledig geïsoleerd

Oppervlaktes en inhoud

Perceeloppervlakte
148 m²
Woonoppervlakte
104 m²
Inhoud
359 m³
Oppervlakte externe bergruimte
11 m²

Indeling

Aantal bouwlagen
3
Aantal kamers
5 (waarvan 4 slaapkamers)
Aantal badkamers
1 (en 1 apart toilet)

Locatie

Ligging
Aan rustige weg
In woonwijk
Nabij school

Tuin

Type
Achtertuin
Hoofdtuin
Ja
Oriëntering
Zuidoost
Heeft een achterom
Ja
Staat
Normaal

Energieverbruik

Energielabel
B

Uitrusting

Warm water
Stadsverwarming
Verwarmingssysteem
Airconditioning
Stadsverwarming
Badkamervoorzieningen
Douche
Ligbad
Toilet
Wastafelmeubel
Heeft airco
Ja
Glasvezelaansluiting aanwezig
Ja
Tuin aanwezig
Ja
Heeft rolluiken
Ja
Heeft schuur/berging
Ja
Heeft zonwering
Ja

Kadastrale gegevens

Kadastrale aanduiding
Tilburg AF 2965
Perceeloppervlakte
148 m²
Omvang
Geheel perceel
Eigendomsituatie
Eigen grond

Benieuwd wat jouw huis waard is?

Gratis waardebepaling