Koop:Hoofdwal 73, 4207 EB Gorinchem - Foto
+37

Hoofdwal 73 4207 EB Gorinchem € 495.000,- k.k.

  • Woonhuis
  • 3 kamers
  • 2 slaapkamers
  • 1 badkamers
  • Bouwjaar 1970
  • 150 m² perceeloppervlakte
  • 130 m² gebruiksoppervlakte
  • C Energielabel C

Beschrijving

Licht & modern huis met tuinkamer en glazen achterpui – instapklaar!

Aan de geliefde Hoofdwal 73 te Gorinchem, bevindt zich deze instapklare en bijzonder lichte woning met een moderne uitstraling en meerdere unieke extra’s die je in deze wijk bijna nergens anders vindt. De woning beschikt over een volwaardige tuinkamer, een prachtige glazen achterpui met enorme lichtinval en een elektrische garagedeur met ruime berging. Hierdoor geniet je van extra leefruimte én dagelijks wooncomfort dat verder gaat dan de standaard drive-in woningen in Wijdschild.

Met ca. 130 m² woonoppervlak, een slimme indeling en een fijne tuin op de zonzijde, is dit een ideaal huis voor wie gelijkwaardig wooncomfort zoekt aan nieuwbouw – maar dan met meer ruimte, luxe en afwerking.

Indeling
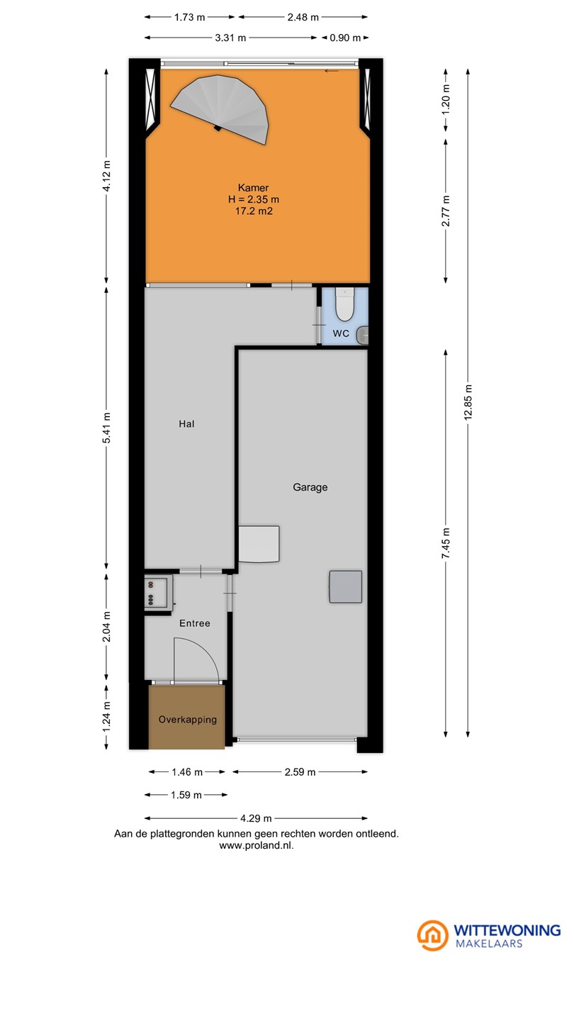
Begane grond

Via de nette entree kom je binnen in de ruime hal met toegang tot de multifunctionele ruimte aan de voorzijde en de grote berging voorzien van elektrische garagedeur. De berging is ideaal voor fietsen, motor, hobby’s of opslag en biedt direct toegang vanaf de straat. Een zeldzaam comfortabel en veilig pluspunt in deze wijk. De berging is gezien de grootte en omdat deze inpandig is ook te splitsen zodat er nog een extra (werk) kamer ontstaat.

Achterin bevindt zich de prachtige tuinkamer: een extra lichte, moderne ruimte die het hele jaar door te gebruiken is als tweede woonkamer, thuiswerkplek, eetkamer of lounge. Dankzij de glazen schuifpui heb je een directe verbinding met de tuin en voelt deze ruimte als een volwaardige uitbreiding van je leefoppervlak. Door de kleine pantry in de tuinkamer is het kopje koffie of thee binnen handbereik en is het niet nodig die in de centrale keuken te bereiden.

Eerste verdieping

De royale woonkamer met grote glazen achterpui valt meteen op door het vele daglicht en de open, moderne uitstraling. Dit is werkelijk een heerlijke leefruimte waar licht, rust en ruimte samenkomen. De open keuken aan de voorzijde is praktisch ingedeeld en biedt voldoende ruimte voor een gezellige eethoek.

Tweede verdieping

Op de bovenste verdieping vind je twee (voorheen 3) goed bemeten slaapkamers en een moderne badkamer. De kamers zijn licht en comfortabel, ideaal voor een gezin, logees of een thuiswerkplek.

Buitenruimte

De tuin ligt gunstig en is onderhoudsvriendelijk aangelegd. Dankzij de directe verbinding met de tuinkamer ontstaat een sfeervolle combinatie van binnen en buiten – perfect voor ontspannen avonden, etentjes of een rustige werkplek met uitzicht op groen.

Pluspunten op een rij

Unieke tuinkamer (vierseizoenen-ruimte) – volwaardige extra leefruimte

Royale glazen achterpui – uitzonderlijk veel daglicht, moderne uitstraling. De warmte wordt gereguleerd door prachtige electrische screens over de totale achterzijde van de glaspui.

Elektrische garagedeur + grote berging – ideaal voor fietsen/motor/hobby’s. (eventueel te splitsen om een extra leefruimte te creëren).

Extra bruikbare m² t.o.v. vergelijkbare woningen

Instapklare afwerking

Ruime, lichte woonkamer

Comfortabele indeling met 2 slaapkamers en een heerlijke aanvullende tuinkamer.

Aangename tuin met veel privacy

Gelegen in de rustige, geliefde wijk Wijdschild

Waarom dit huis anders is dan vergelijkbare woningen in de buurt

Deze woning onderscheidt zich door de combinatie van extra leefruimte, licht en comfort. Waar veel woningen in de wijk een standaard indeling en afwerking hebben, biedt Hoofdwal 73 meerdere upgrades.

Wie zoekt naar een ruime, moderne en onderhoudsarme woning waar je zó in kunt, zal zich hier direct thuis voelen.

**Zie jij jezelf hier al wonen?**

Dit woonhuis aan de Hoofdwal 73 is een echte buitenkans. Niet alleen vanwege het luxe niveau en de gunstige ligging, maar juist ook omdat je hier zorgeloos kunt genieten en helemaal je eigen sfeer kunt creëren.

Wil je meer weten, of plan je graag een bezichtiging? Neem contact op. Bezichtigingen zijn flexibel en op korte termijn in te plannen.

Kaart

Kenmerken

Overdracht

Referentienummer
00008
Vraagprijs
€ 495.000,- k.k.
Inrichting
Niet gestoffeerd
Inrichting
Niet gemeubileerd
Aanvaarding
Direct
Aangeboden sinds
Zaterdag 25 oktober 2025
Laatste wijziging
Zaterdag 3 januari 2026

Bouw

Type object
Woonhuis, eengezinswoning, tussenwoning, splitlevelwoning
Soort bouw
Bestaande bouw
Bouwperiode
1970
Type dak
Platdak
Isolatievormen
Dubbel glas

Oppervlaktes en inhoud

Perceeloppervlakte
150 m²
Woonoppervlakte
130,3 m²
Woonkameroppervlakte
29,49 m²
Keukenoppervlakte
13,78 m²
Inhoud
287 m³
Oppervlakte overige inpandige ruimten
18,8 m²
Oppervlakte gebouwgebonden buitenruimte
42,9 m²

Indeling

Aantal bouwlagen
3
Aantal kamers
3 (waarvan 2 slaapkamers)
Aantal badkamers
1 (en 1 apart toilet)

Locatie

Ligging
Aan rustige weg
Dichtbij openbaar vervoer
In woonwijk

Tuin

Type
Achtertuin

Energieverbruik

Energielabel
C

CV ketel

Warmtebron
Gas
Eigendom
Eigendom

Uitrusting

Aantal parkeerplaatsen
1
Warm water
CV-ketel
Verwarmingssysteem
Airconditioning
Centrale verwarming
Keukenvoorzieningen
Inbouwapparatuur
Badkamervoorzieningen
Douche
Ligbad
Toilet
Wastafel
Parkeergelegenheid
Inpandige garage
Heeft airco
Ja
Heeft een alarm
Ja
Tuin aanwezig
Ja
Heeft een garage
Ja

Kadastrale gegevens

Kadastrale aanduiding
Gorinchem 00 3355
Perceeloppervlakte
150 m²
Omvang
Beklemming
Eigendomsituatie
Eigen grond

Brochure(s) en overige bijlagen

Hoofdwal 73, 4207 EB GORINCHEM (1) Download
woonkamer en keuken Download
woonkamer uitzicht tuin Download
tuinuitzicht vanuit tuinkamer begane grond Download
badkamer Download
Slaapkamer Download

Benieuwd wat jouw huis waard is?

Gratis waardebepaling